Ваш город:

Выберите город

×
МоскваСанкт-Петербург
КраснодарКазань
НовосибирскЕкатеринбург
Нижний НовгородЧелябинск
СамараОмск
Ростов-на-ДонуУфа
КрасноярскВоронеж
ПермьВолгоград

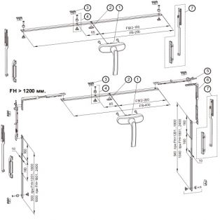
Откидная фурнитура СТН-1850-60

+ Бесплатная доставка на все заказы всвыше 1.8млн. р
+ Оригинальная продукция Продаем без контрафакта

Наличие и стоимость доставки менеджер сообщит вам после оформления заказа.

Обращаем ваше внимание на способы доставки и способы оплаты товара